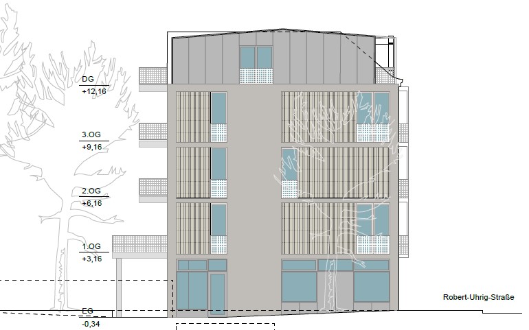
Für das genossenschaftliche, gemeinschaftliche, generationenübergreifende und inklusive Wohnungsneubauprojekt RUXX, Robert-Uhrig-Straße in Berlin Lichtenberg, werden die künftigen Bewohner:innen gesucht.
GENIUS Wohnbau eG startet Auswahlverfahren für WBS-Wohnungen in der Robert- Uhrig-Straße
Vorhabenträgerin und künftige Vermieterin ist die neu gegründete GENIUS Wohnbau eG (Genossenschaft). GENIUS steht für „Genossenschaft für inklusives und soziales Wohnen“.
Vor dem Hintergrund der Wohnraummisere in Berlin haben sich im Januar 2020 fünfzehn soziale Träger (mittlerweile 17 Mitglieder) unter dem Dach des Paritätischen Wohlfahrtsverbandes zusammen-geschlossen und die Genossenschaft gegründet, um selbst für ihre sozialen Angebote dringend benötigten und bezahlbaren Wohnraum zu schaffen und zu akquirieren. (s. Anlage 1 RUXX, S. 1). Die Netzwerkagentur GenerationenWohnen unterstützt die GENIUS eG dabei mit Hilfe eines offenen Auswahlverfahrens, das sich an alle Interessierte am gemeinschaftlichen inklusiven Wohnen in Berlin richtet.
Im Folgenden erhalten Sie sämtliche Informationen zum Auswahlverfahren, zum Wohnprojekt und Gebäude, zur Teilnahme am Verfahren und den Bedingungen:
Beschreibung und Ablauf des Auswahlverfahrens
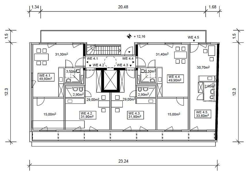
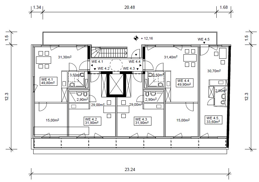
Beschreibung des Wohnprojekts mit Projektdaten
Vorteile für künftige Mitglieder
Beispielrechnung für monatliche Kosten (Miete und Tilgung des Förderdarlehens)
Nachweise bei Antragstellung Darlehen
RUXX Portfolio – Beschreibung und Darstellung des Bau- und Nutzungskonzepts (inkl. Grundrisse)
Bewerbungszeitraum ist auf unbestimmte Zeit verlängert.
Bewerber:innenfragen: Bitte ausschließlich schriftlich an beratungsstelle[at]stattbau.de senden.
Per Post an: Netzwerkagentur GenerationenWohnen c/o STATTBAU GmbH, Hermannstraße 182, 12049 Berlin Neukölln,
oder per E-Mail an: beratungsstelle[at]stattbau.de

